Skip to site navigation.
Skip to content.
Skip to Reed contact information.
Reed College
Toggle menu
Academics
Admission & Aid
Campus Life
About
Current Students
Faculty & Staff
Parents & Families
Alumni
IRIS Login
Directory
Apply
Visit
Request Info
Give
Toggle search
search
Search
Reed College
Apply
Visit
Request Info
Give
Home
Campus Life
Performing Arts Building
Performing Arts Building
Performing Arts Building
Menu
Performing Arts Building
Architectural renderings
Funding
Greenhouse Gas Offset Monitor
Architectural renderings of the
Performing Arts Building
(click to enlarge images)
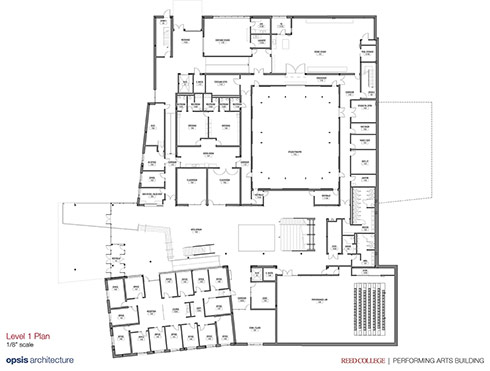
Level 1 floor plan
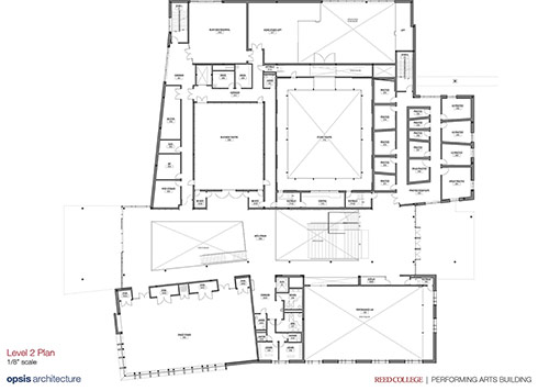
Level 2 floor plan
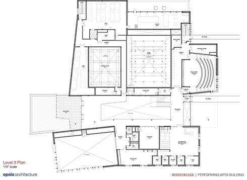
Level 3 floor plan
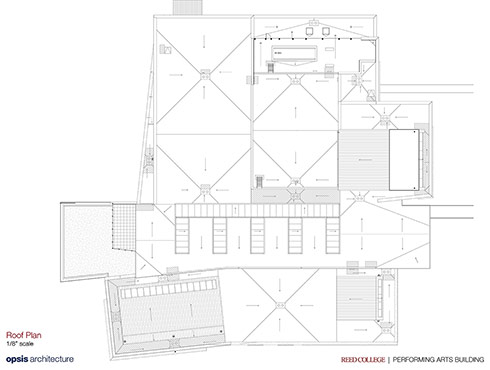
Roof plan