Performing Arts Building

Architectural renderings of the
Performing Arts Building

(click to enlarge images)

east elevation

East elevation

south elevation

South elevation

site plan

Site plan

level 1

Level 1 floor plan

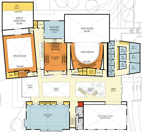
level 2

Level 2 floor plan

level 3

Level 3 floor plan